Vivienda de obra nueva en San Fulgencio (Alicante) –

355.000 €
Estado Como nuevo
Categoría Inmobiliaria
Ubicación San Fulgencio, Alicante
Vistas 53
Publicado 11/12/2025 22:23
ID #17654882382056
Avatar de Housell

Housell

(45 reseñas)

Comentario del anunciante

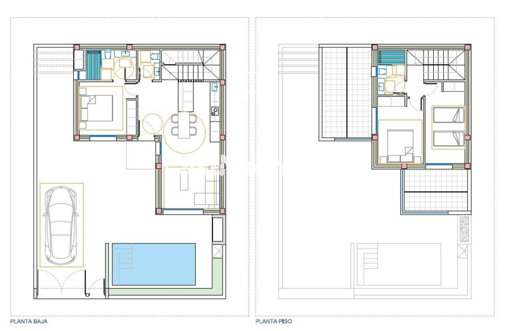
Ideal para estancias cortas o largas Descubre esta moderna vivienda en construcción situada en una de las zonas más tranquilas y agradables de San Fulgencio, perfecta tanto para disfrutar de unas vacaciones bajo el sol de Alicante como para residir todo el año. La casa ofrece calidades actuales, un diseño luminoso y funcional, y una distribución pensada para el confort: 3 dormitorios 2 baños completos + 1 aseo Salón-comedor con cocina abierta, creando un gran espacio diáfano y acogedor Parcela de tamaño cómodo, fácil de mantener Piscina privada, perfecta para refrescarse durante todo el año Gracias a su orientación mediterránea y al clima privilegiado de Alicante, esta vivienda es una excelente opción para quienes buscan descanso, bienestar y comodidad, ya sea para temporadas cortas o para instalarse definitivamente. Una oportunidad perfecta para disfrutar del estilo de vida mediterráneo con todas las comodidades modernas.
Ver más

Este anuncio no tiene ubicación GPS disponible para mostrar en el mapa.

Listados donde aparece este anuncio

inmobiliaria de segunda mano #5