Oportunidad nica en el casco antiguo de Torrent!

179.000 €
Estado Como nuevo
Categoría Inmobiliaria
Ubicación Torrent, Valencia
Vistas 52
Publicado 28/12/2025 01:32
ID #17668819324878
Avatar de Jaime SILLA

Jaime SILLA

(46 reseñas)

Comentario del anunciante

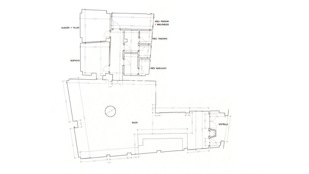
Oportunidad nica en Torrent! Este impresionante inmueble de 193 metros cuadrados distribuidos en una 1 planta es ideal para inversores y emprendedores ya que cumple con todo lo necesario para iniciar de nuevo la actividad. Dentro del local encontrars una barra completamente equipada, tres baos, aire acondicionado, almacn, cocina con posibilidad de salida de humos, calefaccin y sala privada. Ofrece mltiples posibilidades para diversas promociones. Todo eso por solo 193.000 euros! Cerca de zonas de museos y casco antiguo de la ciudad.
Ver más

Este anuncio no tiene ubicación GPS disponible para mostrar en el mapa.

Listados donde aparece este anuncio

inmobiliaria de segunda mano #201