Masía única con proyecto de rehabilitación y licencias vigentes a 15' de las playas de Sitges

490.000 €
Estado Como nuevo
Categoría Inmobiliaria
Ubicación Canyelles, Barcelona
Vistas 0
Publicado 10/01/2026 16:30
ID #17668817605501
Avatar de Paula BOTERO

Paula BOTERO

(45 reseñas)

Comentario del anunciante

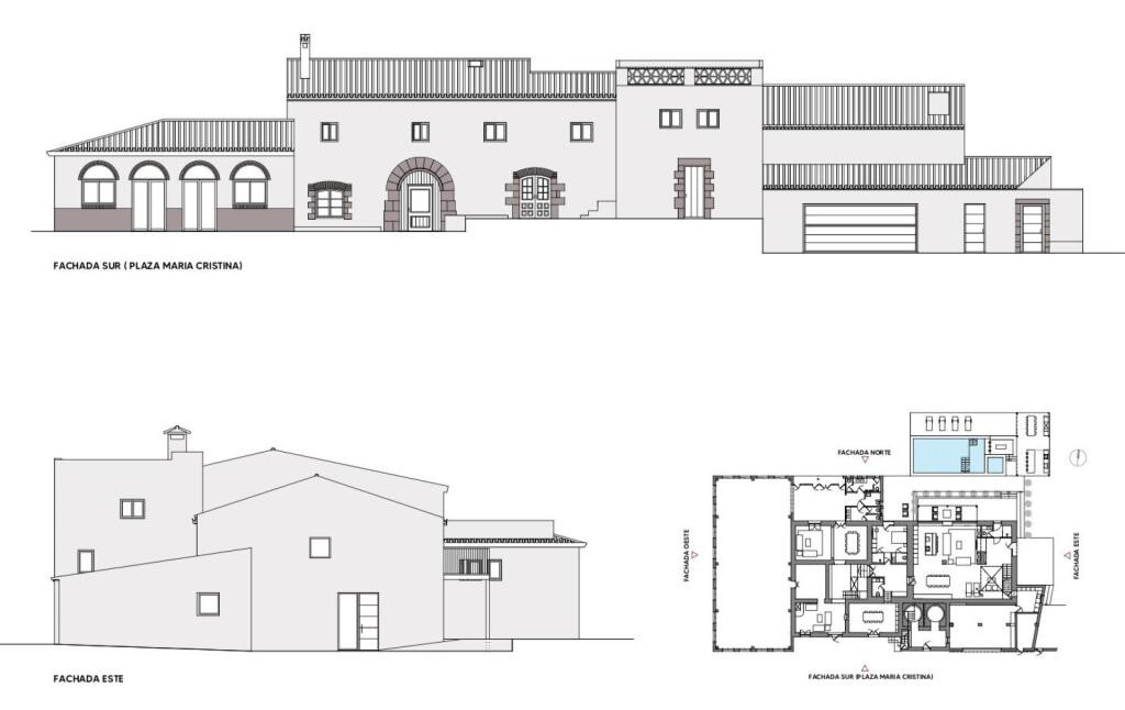
En el centro de Canyelles, a solo 14 minutos de Sitges y 40 minutos de Barcelona, se encuentra esta Masía única de 1.381 m² construidos sobre una parcela llana de 5.166 m². Una propiedad con historia, encanto y un gran potencial para convertirse en un espacio exclusivo. La vivienda conserva elementos originales como vigas de madera, suelos artesanales y paredes de piedra y ladrillo visto, que aportan autenticidad y carácter. Dispone de un proyecto de rehabilitación aprobado, diseñado para transformarla en una residencia de lujo, hotel boutique, restaurante con encanto o espacio para eventos, donde la tradición se une al diseño contemporáneo. Además, cuenta con licencias de obra vigentes, lo que permite continuar las reformas y avanzar con el proyecto de inmediato. La parcela incluye árboles centenarios y un jardín con vistas a las montañas mediterráneas, ofreciendo un entorno natural de gran belleza y tranquilidad. Una oportunidad única para quienes buscan una finca con personalidad, proyección y un valor arquitectónico excepcional en un entorno inspirador. Nota: algunas de las imágenes son de referencia y no todas son vinculantes.
Ver más

Características y equipamiento

Características básicas

m² construidos 1.381 m²
m² útiles 1.250 m²
Habitaciones 5 habitaciones
Baños 3 baños

Ubicación del anuncio

Listados donde aparece este anuncio

inmobiliaria de segunda mano en Canyelles #1